AVES 33 БОЛОНЬЯ — универсальный дизайнерский камин с вариативной топкой
Камин AVES 33 БОЛОНЬЯ — это стильное интерьерное решение, сочетающее элегантность, надёжность и гибкость установки. Модель доступна в двух вариантах исполнения:
С открытой топкой — стеклянная дверца закрывает ¾ высоты
С закрытой топкой — дверца полностью застеклена
Такой подход позволяет выбрать оптимальный формат визуального контакта с огнём и уровень безопасности. Камин может быть установлен как в пристенном, так и в угловом варианте, что делает его идеальным для нестандартных планировок и дизайнерских решений.
Изготовлен из прочной стали, покрыт термостойкой краской, оснащён жаростойким стеклом. Подходит для использования с электрокамином или биокамином.

Преимущества:
Два варианта топки — открытая и закрытая
Пристенная или угловая установка
Жаростойкое стекло и термостойкое покрытие
Совместимость с электрокамином и биотопливом
Элегантный дизайн для современных интерьеров

Видео Пристенный камин AVES 33 БОЛОНЬЯ
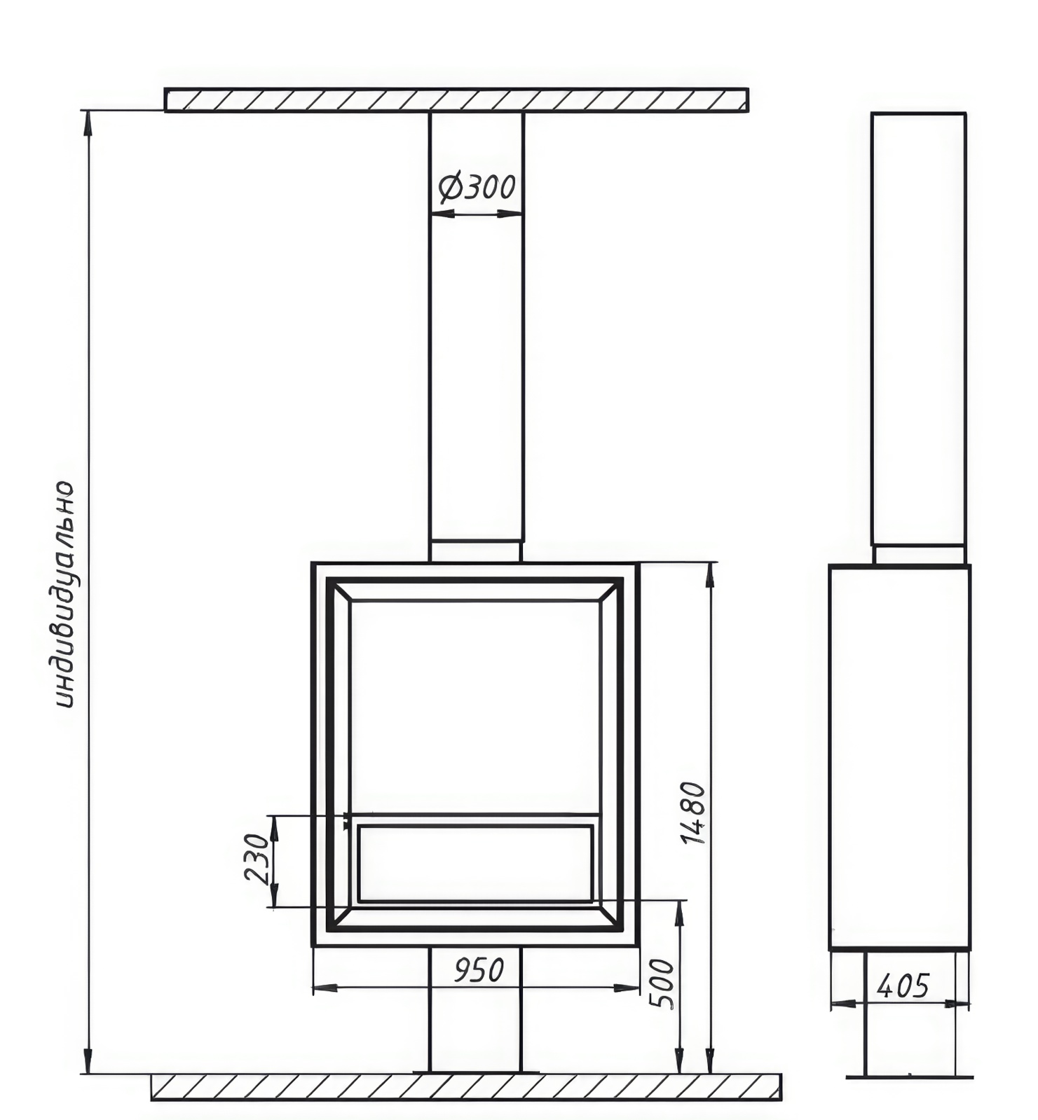
| Вариант подключения дымохода | верхнее |
| Гарантийный срок | 20 лет |
| Материал изготовления | сталь, стекло |
| Производитель | AVES |
| Расположение | пристенный, угловой |
| Стекло | прямое |
| Страна производства | Россия |
| Тип камина | готовый |
| Высота | индивидуальная |
| Глубина | 450 мм |
| Ширина | 950-1200 мм |
| Диаметр подключения дымохода | 300 мм |
| Вид топлива | дрова |









