Печь-камин Spartherm Senso M H₂O с водяным контуром - это классическая печь, неподвластная времени, котораягармонично впишется в ваш интерьер. Он впечатляет своейвысококачественной облицовкой из португальского известняка Порто Бланко.Темный корпус и светлая облицовка элегантно контрастируют.

Этапечь из серии Senso от топового немецкого производителя Sparthermотличается овальными линиями корпуса и высоким панорамным стеклом,обеспечивающим прекрасный обзор огня.
Модель Senso M H₂O - это элегантная печь с черным стальнымфасадом и боковой отделке из натурального камня, известняка PortoBlanco, ее высота составляет 133 см. Длинная дверная ручка в базовойкомплектации поставляется в черном цвете, по запросу может бытьстальной.
Камера сгорания выложена высококачественным мелкопористым шамотомцвета слоновой кости. За дополнительную плату, печь может бытьпоставлена с шамотом черного цвета.
Обзорная дверца закрыта жаропрочным керамическим стекломSchott-Robax, выдерживающим температуру до 760°С и обладающим повышеннойстойкостью к тепловому и механическому удару. Под дверцей находитсяинтегральный регулятор подачи воздуха на горение.
В печи применяется система тройного дожига. Первичный воздухпоступает внизу камеры сгорания, под колосниковой решеткой. Региструправления потоком первичного воздуха расположен под дверцей. Вторичныйвоздух поступает через отверстия на задней стенке камеры сгорания,дополнительно воспламеняет СО (угарный газ, окись углерода) в верхнейчасти камеры сгорания, окисляя его до CO₂. Благодаря этому повышаетсятемпература в камере сгорания и КПД (коэффициент полезного действия),меньше СО попадает в атмосферу, таким образом, процесс горениястановится более энергоэффективным и экологичным.
Кроме того, дополнительный поток направляется вдоль стеклянной дверцы- так называемая система "чистое стекло". Воздушная завеса омываетстекло, препятствуя быстрому его загрязнению сажей и копотью в ходеэксплуатации печи.
Печь соответствует немецкому стандарту BimSchV2, регулирующему максимальное количество выбросов СО в окружающую среду.
Герметичная конструкция
Печь поставляется в двух вариантах:
- RLA - с забором воздуха из помещения, в котором она установлена,
- RLU - с подводом наружного воздуха и в герметичнойконструкции, для работы в энергосберегающих домах, домах с системойрекуперации тепла, принудительной вентиляцией. Опция RLU не требуетдополнительной оплаты.
Печь-камин Spartherm Senso M H₂O в интерьере:

Цена может меняться в зависимости от цвета и отделки модели.
Форма и функция идеально дополняют другдруга. Его четкие линии делают его впечатляющим объектом из стали иогня. В качестве перегородки перед стеной или посередине комнаты. Senso M H₂Oвсегда привлекает внимание.

Видео Печь-камин Spartherm Senso M H₂O
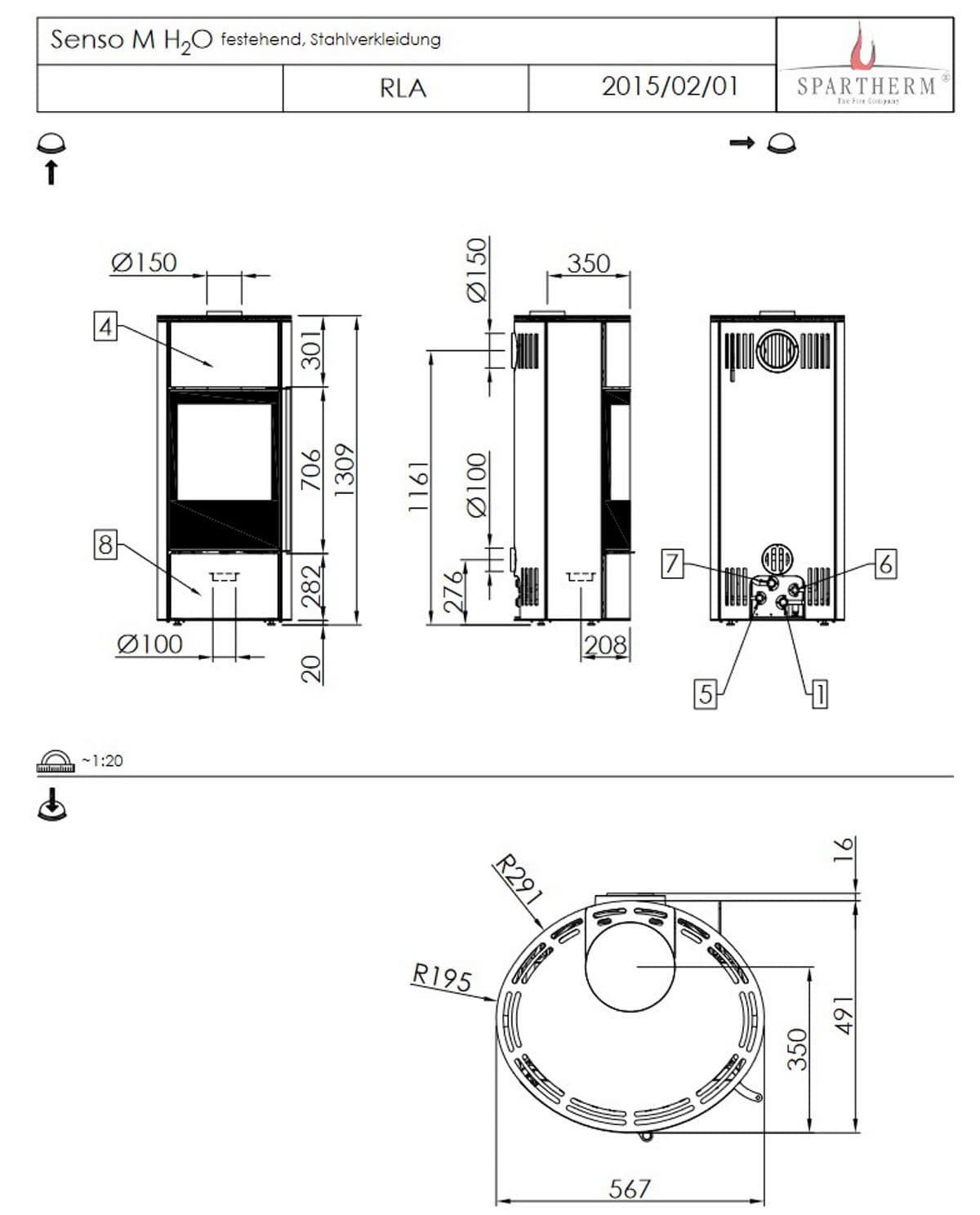
| Высота | 1309 мм |
| Глубина | 491 мм |
| Ширина | 5671 мм |
| Варочная поверхность | нет |
| Вес | 180 кг |
| Вид топлива | дрова, брикеты |
| Водяной контур | Да |
| Диаметр дымового патрубка | 150 мм |
| Длительное горение | да |
| КПД | 80 % |
| Материал топки | сталь, шамот |
| Материалы корпуса | сталь |
| Номинальная мощность | 2.6 кВт + 5 кВт теплообменник |
| Подключение к дымоходу | верхнее, заднее |
| Расположение печи-камина | Пристенное, угловое |
| Производитель | Spartherm (Германия) |



























