Solzaima M12F Eco - печь M12F Eco Solzaima известна своей привлекательной эстетикой, наличием дровяной топки и духовки.
Камин устойчив к высоким температурам благодаря использованию в производстве высококачественной стали.
Его простой и элегантный внешний вид сочетается с отличными тепловыми параметрами.
Все дровяные печи для локального отопления оснащены дефлектором, который направляет золу в ящик, чтобы облегчить очистку вашего оборудования. Они имеют двойной дефлектор: один из листового металла, другой из вермикулита, что делает оборудование более эффективным. Циркуляция воздуха внутри помогает гарантировать, что окно всегда чистое во время работы.
Контроль за процессом горения, который достигается за счёт герметичности отопительных приборов и контроля подачи воздуха на горение в топочную камеру.
Основные преимущества дровяной печи Solzaima M12F Eco:
зольный ящик с большой вместимостью;
регулятор горения;
встроенный дефлектор;
внешний воздухозаборник (опция);
тангенциальный вентилятор: конвекционная вентиляция (опция);
камера сгорания выложена вермикулитом;
вторичный дожиг;
система "Чистое стекло".
Мощность печи: 5,5-10.1 кВт (номинальная мощность: 7,8 кВт).
Такая печь способна обогреть помещения объемом до 177 м3.
КПД - 88%.
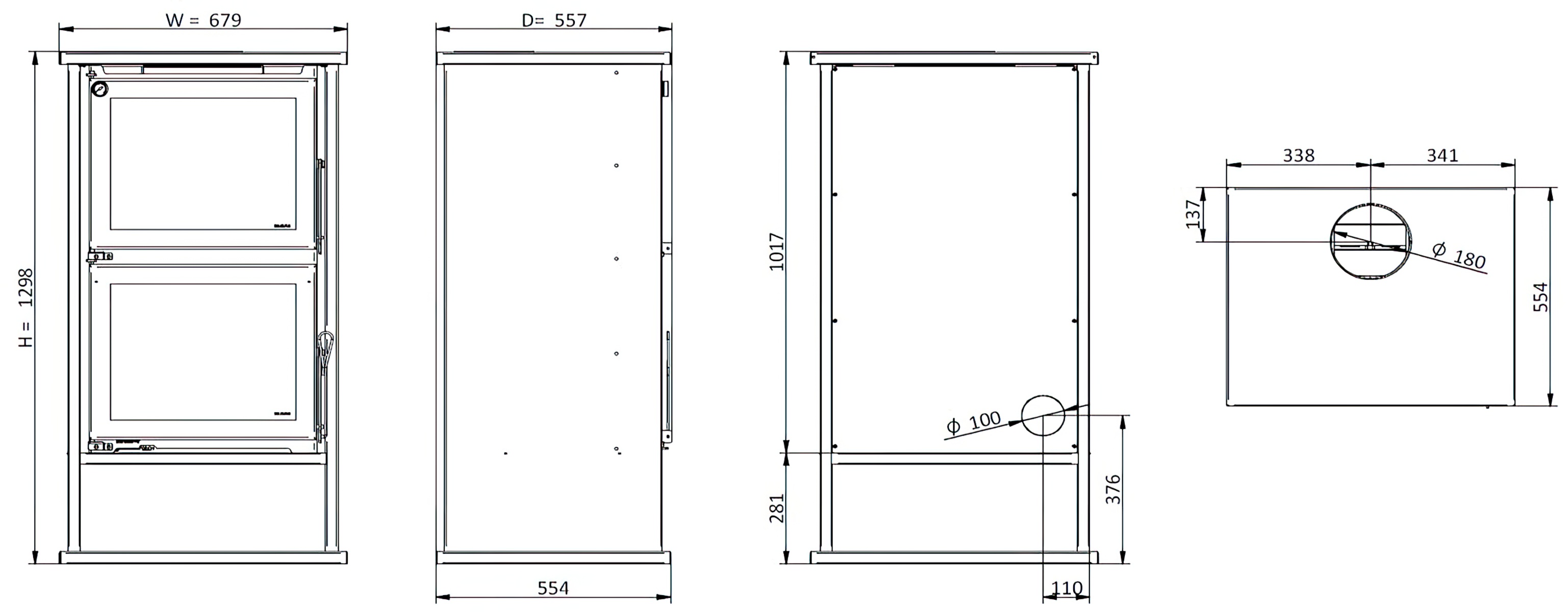
Диаметр дымохода: 180 мм.
Размеры В×Ш×Г: 1298×679×557 мм.
Максимальная длина дров: 25 см.

Весь ассортимент продукции Solzaima отличается высокой точностью сборки и качеством исходных материалов. Производственный процесс проходит строгий контроль, а остаточные материалы перерабатываются. Все это для того, чтобы ваш дом был оснащен качественным и надежным оборудованием. Solzaima имеет экологический сертификат ISO 14001 и сертификат качества ISO 9001. В этом отношении компания является образцом для подражания.
Печь-камин Solzaima M12F Eco чертеж:


Видео Печь-камин Solzaima M12F Eco
| Вторичный дожиг | да |
| Максимальная длина поленьев (мм) | 250 мм |
| Система очистки стекла | да |
| Высота | 1298 мм |
| Глубина | 557 мм |
| Ширина | 679 мм |
| Вес | 166 кг |
| Водяной контур | нет |
| Диаметр дымового патрубка | 180 мм |
| Длительное горение | да |
| Духовой шкаф | да |
| КПД | 88 % |
| Номинальная мощность | 7.8 кВт |
| Отапливаемый объём | 177 м3 |
| Расположение печи-камина | пристенное |
| Расход твердого топлива | 2,1 кг/ч |
| Производитель | Solzaima (Португалия) |
| Мощность (кВт) | 5.5-10.1 кВт |
| Подача воздуха извне | да |



































