Описание Skantherm EMOTION S
Печь-камин EMOTION S - идеальный выбор для ценителей дизайна и красивого огня. Универсальный и изысканный, Камин обладает элегантным дизайном и высоким качеством, что делает его идеальным решением для тех, кто ценит комфорт и стиль. Ваш интерьер станет еще более привлекательным и уютным благодаря этому изысканному камину. Шедевр формы и функциональности.ОГОНЬ ИМЕЕТ СТИЛЬ И ЗНАЧЕНИЕ
Огонь имеет стиль и значение, даже если он горит при слабом огне. «EMOTION S» демонстрирует это: несмотря на меньшие размеры и номинальную теплоемкость, младший брат «EMOTION S» просто обеспечивает большую эффективность. Например, большое стекло в опционально вращающейся верхней части камина обеспечивает неприкрытый вид на пламя – даже если оно только на слабом огне. Плавно регулируемый регулятор воздуха для горения позволяет точно контролировать огонь. Мы обещаем, что даже небольшая «эмоция» вызовет большой энтузиазм.
— Идеально подходит для небольших и средних помещений;
— Доступно подключение для внешнего воздуха для горения;
— Опционально доступен: тепловой аккумулятор с аккумулирующей массой до 73 кг;
— Используется с системой контролируемой вентиляции и системой вентиляции;
— Верхняя часть поворотная (опция).
Печь-камин Skantherm EMOTION S в интерьере

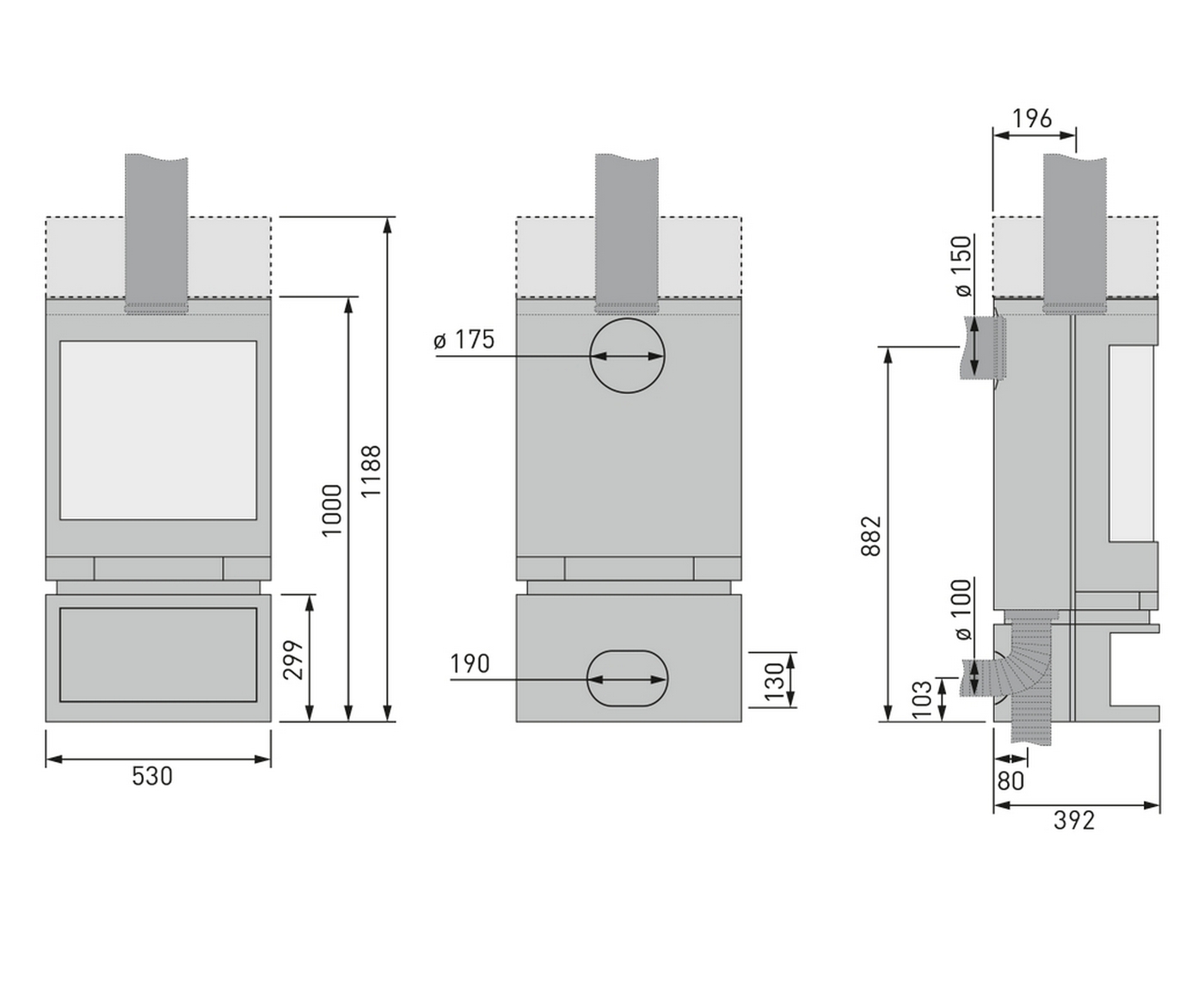
Габаритные размеры Skantherm EMOTION S
| Вес | 139 (кг) |
| Виды твердого топлива | Дрова |
| Водяной контур | Нет |
| Вторичный дожиг | Да |
| Гарантийный срок | 5 лет |
| Глубина | 392 мм |
| Наличие шибера | Нет |
| Подключение к дымоходу | Верхнее/Заднее |
| Подъем стекла вверх | Нет |
| Производитель | Skantherm |
| Система очистки стекла | Да |
| Страна производитель | Германия |
| Тип остекления | Радиальное |
| Ширина | 530 мм |
| Высота | 1000 мм |
| Материал топки | Сталь |
| Мощность печи | 4 кВт |



















