Дровяная печь Zeta – это идеальное сочетание огня и стильного предмета интерьера.
Zeta — серия каминов, основанная на скандинавских традициях, когда речь идет о высоком мастерстве и стильном дизайне.
Уникальное сочетание вставки Jydepejsen H530, красиво расположенной в сердце печи, и свободы выбора между цоколями создает новые возможности и широкое выражение современного дизайна интерьера.
Ваш индивидуальный выбор может быть выполнен в соответствии с формой, цоколем и материалом. Выберите между Zeta Freestanding, Zeta Base и Zeta Wall из кортеновой стали или черной стали и ощутите захватывающее взаимодействие между материалами, формами и огнем.
Zeta Wall Corteen - дровяная печь, которую можно повесить на стену.
Через большое стекло удобно наблюдать за горящим пламенем.
Корпус выполнен из кортеновой стали.
Топка внутри выложена плитами вермикулита.
В печи реализована запатентованная воздушная система DuplicAir, обеспечивающая чистое сгорание топлива и минимальную эмиссию.
Мощность печи 4-9 кВт (номинальная мощность: 7,4 кВт). Такая печь способна обогреть площадь до 140 м2.
КПД - 80%.
Диаметр дымохода: 150 мм.
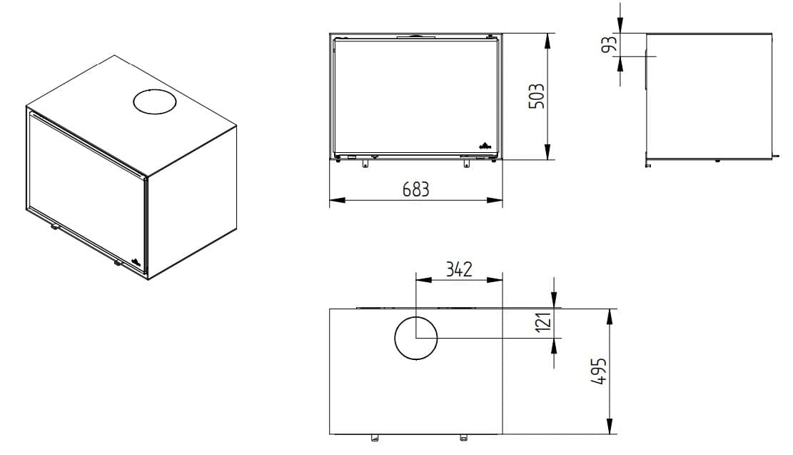
Размеры В×Ш×Г: 503×683×495 мм.
Размеры топки В×Ш×Г: 350 x 600 x 300 мм.
Печь-камин Jydepejsen Zeta Wall Corteen чертеж:


Видео Печь-камин Jydepejsen Zeta Wall Corteen
| Высота | 503 мм |
| Глубина | 495 мм |
| Ширина | 683 мм |
| Варочная поверхность | нет |
| Вес | 122 кг |
| Вид топлива | дрова, брикеты |
| Водяной контур | нет |
| Диаметр дымового патрубка | 150 мм |
| Длительное горение | да |
| Материалы корпуса | сталь |
| Номинальная мощность | 7,4 кВт |
| Облицовочный материал печи-камина | металл |
| Расположение печи-камина | Пристенные |
| Производитель | Jydepejsen (Дания) |
| Подача воздуха извне | нет |









