Jydepejsen Cubic 166— это минималистичная и современная дровяная печь, которая своими четкими линиями идеально подходит для современных домов.
Cubic разработан Андерсом Норгаардом, который стремился создать красивую и функциональную дровяную печь.
В серию входят различные модели, которые прекрасно вписываются в дизайн интерьера дома.
Модель изготовлена из стали и окрашена в черный цвет.
Через большое стекло в дверце печи удобно наблюдать за горящим пламенем.
Топка внутри выложена плитами вермикулита.
Снизу печи есть удобная ниша, в которой можно хранить дрова.
В Jydepejsen Cubic 166 реализована запатентованная воздушная система DuplicAir, обеспечивающая чистое сгорание топлива и минимальную эмиссию.
Мощность печи 3-8 кВт (номинальная мощность: 6 кВт).
Такая печь способна обогреть площадь до 140 м2.
КПД - 80%.
Диаметр дымохода: 150 мм.
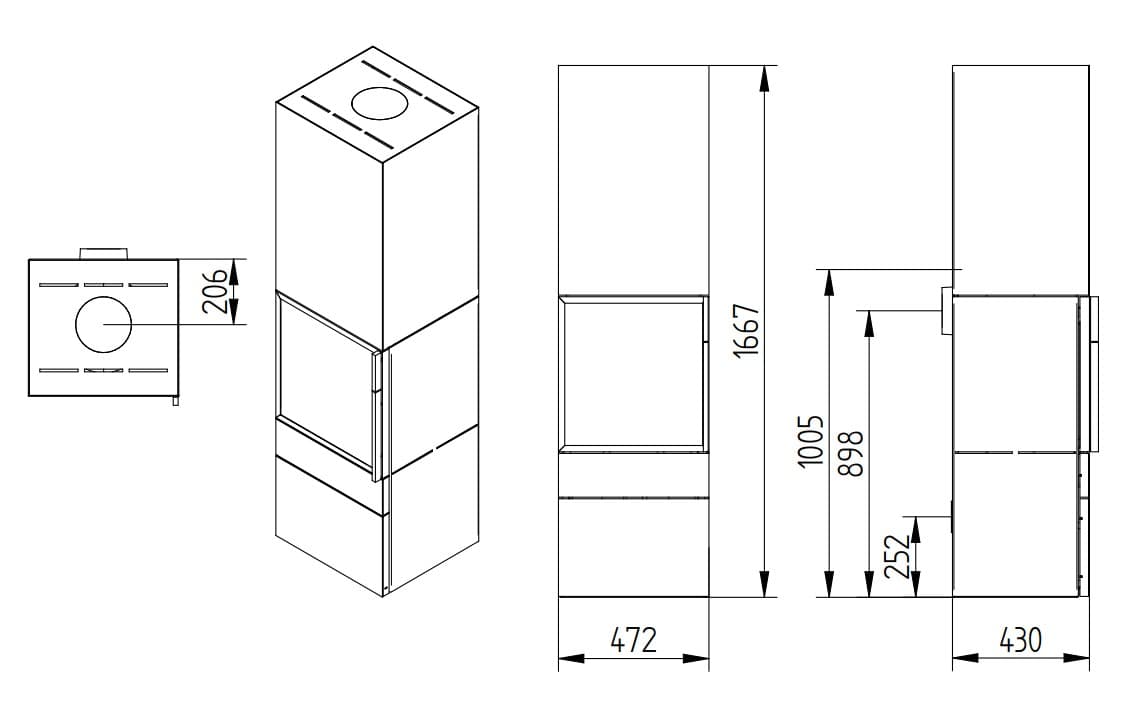
Размеры В×Ш×Г: 1667×472×430 мм.
Размеры топки В×Ш×Г: 415 x 365 x 325 мм.
Максимальная длина дров: 37 см.
Доп. опция: подключение воздуха извне.
Печь-камин Jydepejsen Cubic 166 чертеж:

Печь-камин Jydepejsen Cubic 166 в интерьере:


Видео Печь-камин Jydepejsen Cubic 166
| Высота | 1667 мм |
| Глубина | 430 мм |
| Ширина | 472 мм |
| Вес | 179 кг |
| Вид топлива | дрова, брикеты |
| Водяной контур | нет |
| Диаметр дымового патрубка | 150 мм |
| Длительное горение | да |
| Материалы корпуса | сталь |
| Номинальная мощность | 6 кВт |
| Облицовочный материал печи-камина | металл |
| Расположение печи-камина | Пристенные |
| Производитель | Jydepejsen (Дания) |
| Подача воздуха извне | доп.опция |













