Печь-камин DEFRO HOME VIVA от польского производителя Defro - это современная печь традиционной формы, отвечающая стандартам экодизайна.
Простая форма печи и ее хорошая цена – решение, гарантирующее тепло в доме.
Номинальная мощность - 6,6 кВт. Такую печь можно использовать в качестве основного или вспомогательного отопителя.
Корпус выполнен из стали. Стальные печи быстро прогревают воздух в помещении. Они начинают давать тепло через 15 минут после растопки.
Камера сгорания футерована специальным материалом Keramiton белого или черного цвета.
Дверца печи имеет стекло из термостойкой стеклокерамики, которое выдерживает температуру выше 750 оС. А система "Чистое стекло" предотвращает оседание сажи и копоти на стекле, позволяя ему оставаться прозрачным.
Подключение дымохода может быть сверху или сзади.
Модель имеет возможность подачи воздуха извне. Этот способ подключения позволяет избежать задымления при растопке. Кроме того, из обогреваемой комнаты не выжигается кислород, а значит, в холода не нужно открывать окна и выпускать тепло, чтобы обеспечить приток свежего воздуха.
Характеристики DEFRO HOME VIVA:
- Номинальная мощность: 6,6 кВт
- Диапазон мощности: 2,6-7,9 кВт
- Класс энергоэффективности: A+
- Диаметр дымохода: 150 мм
- КПД: 82,5 %
- Температура дымовых газов: 250°C
- Максимальная длина поленьев: 400 мм
- Масса: ~130 кг
ДОПОЛНИТЕЛЬНОЕ ОСНАЩЕНИЕ:
• Цвет (красный, белый, золотой, коричневый, серый)
• Серебряная ручка
Печи DEFRO - это экологические, эффективные и высококачественные устройства.
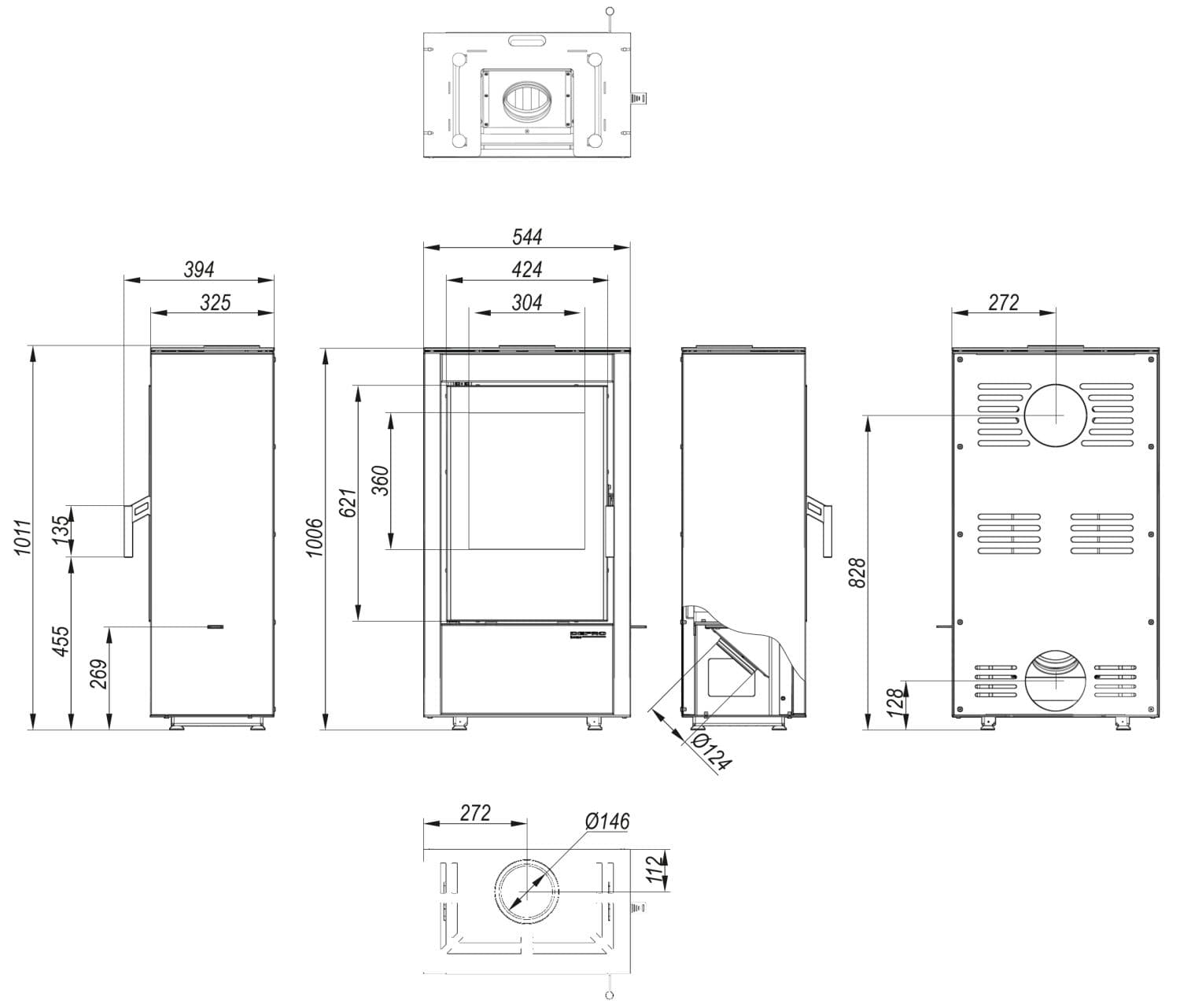
Печь-камин DEFRO HOME VIVA чертеж:

Печь-камин DEFRO HOME VIVA в интерьере:



Купить Печь-камин DEFRO HOME VIVA можно в Салоне - Магазине ПЕЧИ БАНИ. Звоните!
Видео Печь-камин DEFRO HOME VIVA
| Высота | 1015 |
| Глубина | 325 |
| Система очистки стекла | есть |
| Ширина | 544 |
| Вес | 130 кг |
| Виды твердого топлива | Дрова |
| Вторичный дожиг | Да |
| Диаметр дымохода | 150 мм |
| Коэффициент полезного действия | 82,5 % |
| Материал топки | Keramiton |
| Номинальная мощность | 6,6 кВт |
| Облицовочный материал печи-камина | Металл |
| Подключение к дымоходу | Верхнее/Заднее |
| Расположение печи-камина | Отдельно стоящее |
| Страна производитель | Польша |
| Тип топки | Закрытая |
| Цвет | черный, красный, белый, золотой, коричневый, серый |
| Производитель | Defro |
| Подача воздуха извне | D 125 мм |









































