Каминная топка Spartherm Varia C-45h с трехсторонним стеклом обладает не только поразительным дизайном, но также соответствует и распространенному представлению о немецком качестве. Всё в этой топке – от технической до эстетической стороны – соответствует требованиям к продукции премиум-класса. Камин оснащен бесшумным подъемным механизмом дверцы, обеспечивающим полную герметичность топочной камеры, а также системой "чистое стекло" и полностью регулируемой системой вторичного дожига, позволяющей достигать высоких показателей теплоотдачи.

Особенности топки Spartherm Varia C-45h
- Стандартнаяформа оформления с покрытыми черным термостойким лаком деталями дверки.Решение в привычных классических формах. Удобное обслуживание и уход
- Топка оснащена поворотным чугунным дымосборником для индивидуального направления потоков газа
- Современныйдизайн - максимально видная топочная часть. Конструкция дверцывыполнена таким образом, чтобы не мешать восприятию живого огня
- Герметичность корпуса достигается отсутствием винтовых и шурупных креплений
- Втопке использованы не требующие технического обслуживания термостойкиеподшипники и шарикоподшипники скользящего трения. Доступ в контргрузовуюшахту возможен через топочную камеру
- Возможно подключение подачи воздуха на горение извне
- Подачавоздуха на первичный и вторичный дожиг регулируется независимо друг отдруга. Вторичный дожиг воздуха в топочной камере обеспечиваетэффективное сжигание с низким уровнем выброса вредных веществ
- Топка оснащена механизмом фиксации дверцы для закладки дров и чистки стекла
- Топкаимеет одинарное остекление стеклокерамикой высокой температурнойстойкости от лидера мирового рынка SCHOTT. Инфракрасное покрытыеобеспечивает защиту от вредного спектра излучения
- Система самоочистки стекла обеспечивает длительный обзор пламени без помех
- Поворотная колосниковая решетка из высококачественного литого материала, которую легко и просто чистить
- Рычагдля управления воздухом одновременно используется для регулировкиприточного воздуха, вторичного дожига и системы "чистое стекло".Обладает телескопической механикой, минималистичным дизайном и высокойфункциональностью. Для использования регулировки не нужны специальныеинструменты, кроме ключа "холодная рука". Регулировочный рычаг почтинезаметен и не нарушает органичный внешний вид фасада топки
- Подъемная рукоятка красивой и удобной формы выполнена из нержавеющей стали
- Дверцаоснащена замком Soft Close, имеющим европейский патент. Жесткие, неподверженные перекосу дверные профили обеспечивают герметичностьтопочной камеры
- Облицовка топочной камеры не чувствительна к ударам, термостойка и обладает превосходными теплоизоляционными качествами
- Регулируемыеножки предназначены для удобного выравнивания топки, имеют подвижныедиски в основании и обеспечивают устойчивое положение топки

Эти каминные топки сделают ваш открытый огонь в центре внимания. Выможете увидеть игру пламени через три прекрасных стекла. Благодарявстроенной системе промывки лобового стекла этот вид остается четкимдолгое время. Остекление двери камеры сгорания имеет скрытую рамку ичерный рисунок по краю, который визуально обрамляет пламя. С выбираемыммеханизмом электрического стеклоподъемника (S-ESAM) вы открываетепереднюю панель электрически, а цифровая система управления S-ThermatikNEO помогает вам в правильном обращении с огнем.

Каминная топка Spartherm Varia C-45h в интерьере:




Видео Каминная топка Spartherm Varia C-45h
| Вес | 230 кг |
| Виды твердого топлива | Твердое |
| Водяной контур | Нет |
| Гарантийный срок | 5 лет |
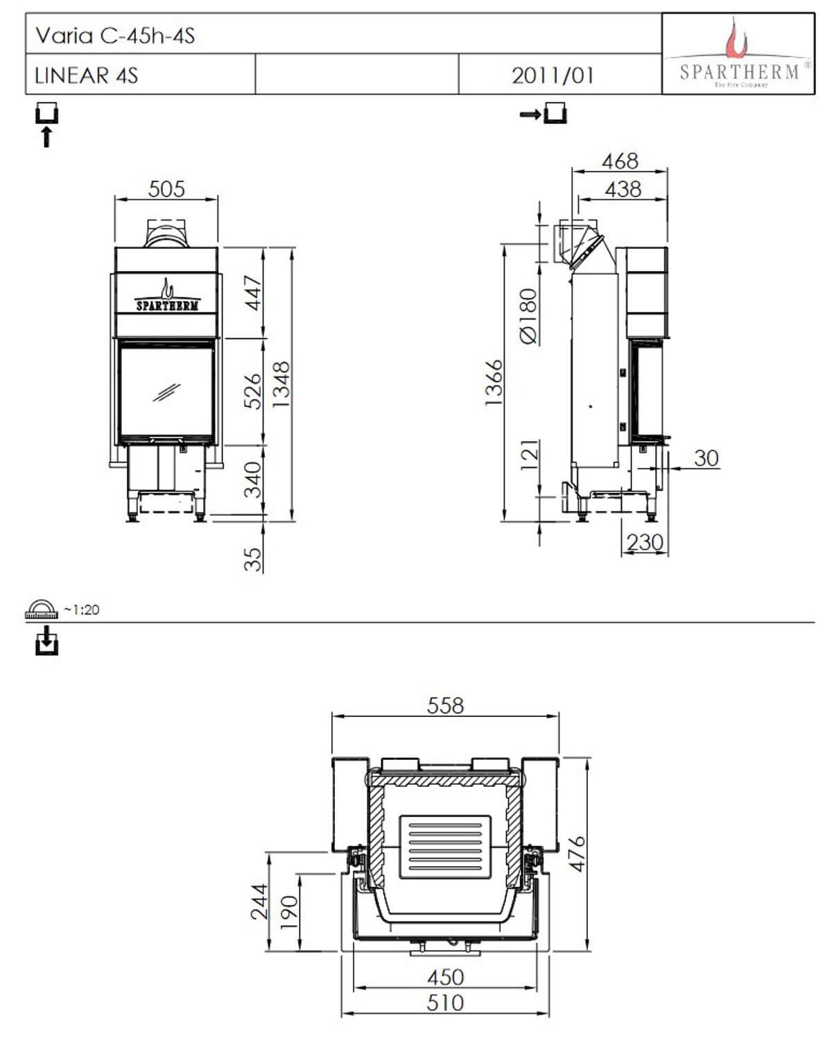
| Глубина | 476 мм |
| Диаметр дымохода | 180 мм |
| Количество стекол в дверце | 3 |
| Коэффициент полезного действия | 80 % |
| Мощность номинальная | 8 кВт |
| Наличие шибера | Нет |
| Подключение к дымоходу | Верхнее |
| Производитель | Spartherm |
| Система очистки стекла | Обдув стекла потоком воздуха |
| Способ открытия дверцы топки | Подъём вверх |
| Страна производитель | Германия |
| Форма стекла топки | трехстороннее |
| Ширина | 588 мм |
| Высота | 1348 мм |
| Материал топки | сталь, шамот |





































