Каминная топка Nordflam Enta EKO изготовлена из чугуна.Отбойник (верхний зуб или дефлектор) выполнен из вермикулита, что позволяет, увеличить температуру внутри топочной камеры, тем самым способствуя более полному сгоранию дров, увеличению КПД, и, что самое важное, лучшему выгоранию сажи со стекла. Также дефлектор продлевает путь дымовых газов, увеличивая теплоотдачу от камина в помещение.
Топка Etna EKO укомплектована шибером для лучшей регулировки процесса горения, а также для предотвращения выхода тепла в дымоход.Есть возможность подключения адаптера подвода внешнего воздуха.На фасаде топки имеются конвекционные отверстия, благодаря которым воздухообмен в каминном коробе происходит быстрее, а топка получает дополнительно охлаждение, что препятствует перегреву при тяжелых условиях эксплуатации.Тыльная сторона токпи Etna EKO оснащена двойной чугунной стенкой. Задняя стенка у каминных топок подвержена максимальной термической нагрузке. Дополнительная сменная внутренняя чугунная пластина защищает основной корпус топки от разрушения при чрезмерных нагрузках.
Nordflam Etna EKO укомплектована чугунной колосниковой решеткой и зольным ящиком, а на фасаде топки расположена стильная заслонка первичной подачи воздуха под колосник.Ручка у каминной топки очень удобная, на нее нанесено специальное термостойкое покрытие, которое приятное на ощупь и очень хорошо смотрится. Механизм закрывания классический рычажного типа, самый надежный и проверенный годами.

Видео Каминная топка Nordflam Etna
| Вес | 86 кг |
| Водяной контур | Нет |
| Вторичный дожиг | нет |
| Наличие шибера | Есть |
| Номинальная мощность (кВт) | 13 |
| Подвод воздуха извне | Опция |
| Подъем стекла вверх | Нет |
| Производитель | NordFlam |
| Тип остекления | Прямое |
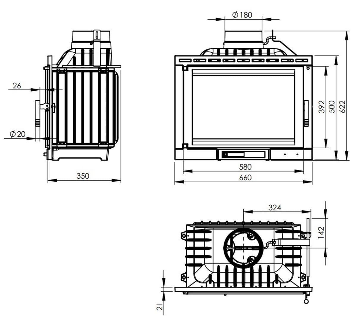
| Диаметр дымохода (мм) | 180 |
| Страна производства | Польша |
| Высота (мм) | 620 |
| Глубина (мм) | 355 |
| Материал топки | Чугун |
| Ширина (мм) | 660 |
































