La Nordica Inserto 70 wide - высококачественная каминная вставка.

Преимущества топки Nordica Inserto 70 wide:
-Каминная топка способна отопить помещение объемом 215 м3;
-Экологичность каминной топки обеспечивает система вторичного дожига, которая обеспечивает чистое горение и уменьшает выброс отработанных газов в окружающую среду;
-Чугунная решетка и дверца G20;
-Высококачественные чугунные двери долговечны и всегда обеспечивают идеальную герметизацию. Открываются в сторону (могут как влево, так и вправо);
-Дверца изготовлена из высокопрочной стеклокерамики, которая выдерживает температуру до 750°C;
-Система «чистого стекла» сохраняет чистоту стеклянной дверцы надолго;
-Для работы изделие использует твердое топливо: дрова и брикеты. Расход топлива — 2,2 кг/час;
-Уход за топкой упрощается, благодаря удобному выдвижному зольному ящику;
-Каминная топка отличается такой характеристикой как низкое потребление топлива наряду с высоким КПД;
-Топка надежна и безопасна в эксплуатации;
-Футеровка топки Nordiker (специальный высокопрочный материал, устойчивый к воздействию высоких температур во время горения);
-Внешний воздухозаборник (система воздухозабора, которая всасывает свежий воздух снаружи непосредственно в систему регулирования горения топки прибора);
-Без вентилятора (опционально вентиляция с комплектом Wind Air).

Вставки предназначены для замены старого открытого камина. Они увеличивают производительность, как с точки зрения тепловой мощности, так и с точки зрения выбросов.
Каминная вставка La Nordica - идеальное решение для вашего камина.
Тепло, атмосфера, стиль - свет горящего огня всегда создает настоящее волшебство.
Но у каждого помещения есть свои потребности, и La Nordica предлагает каждому решение для эффективного и экологичного отопления дома.

Видео Каминная топка La Nordica Inserto 70 wide
| Вторичный дожиг | да |
| Номинальная мощность (кВт) | 7,5 кВт |
| Расход твердого топлива | 2,2 кг/ч |
| Система очистки стекла | да |
| Объем помещения (м3) | 215 м3 |
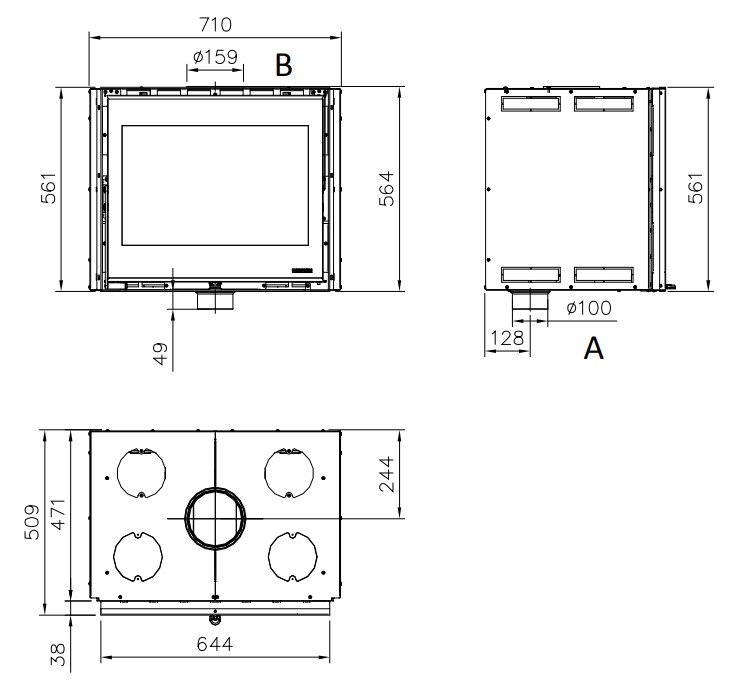
| Высота | 561 мм |
| Глубина | 506 мм |
| Ширина | 704 мм |
| Вес | 140 кг |
| Вид топлива | дрова |
| Водяной контур | нет |
| Диаметр дымового патрубка | 160 мм |
| КПД | 80.7 % |
| Материал топки | Nordiker |
| Подключение к дымоходу | Верхнее |
| Производитель | La Nordica (Италия) |








