Уточняйте цену
Скидки постоянным клиентам!
Гарантия качества всех товаров магазина!
Бесплатная доставка товаров от 200 рублей!
Предлагаем комплексное решение по комплектации бань (дровяными и электрическими печами), загородных домов и квартир (дровяными, био, электрическими каминами)
Описание топки с водным контуром Hoxter WHE 37/50aWTR
Мощность - 10,9 - 25,5 кВт;
Эффективность 85%;
Расшифровка названия продукта:
HAKA - топка с прямым стеклом.
ECKA - топка с угловым стеклом.
UKA - топка с П-образным стеклом.
GT - печная дверца.
GT2 - печная дверца с основанием.
WHE - водонагревательная топка.
h - подъёмная дверца.
S - топка с уменьшенной глубиной.
T - камин туннельный.
a - дополнительная растопочная дверца.
G - камин с большей камерой сгорания.
N - керамическая камера дожига.
ks - печные дверцы с уменьшенной глубиной.
Цена указана за модель WHE 37/50aWTR без дополнительных опций.
Печная топка с водным контуром Hoxter WHE 37/50aWTR в интерьере
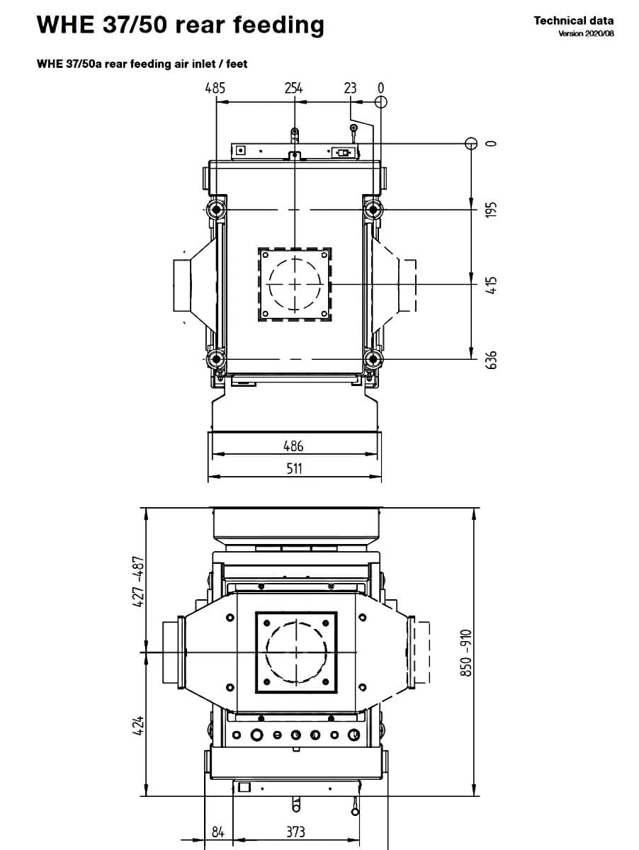
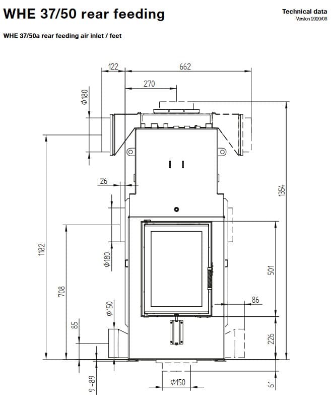
Габаритные размеры топки с водным контуром Hoxter WHE 37/50aWTR
Видео Топка Hoxter WHE 37/50aWTR с водным контуром
| Вес | 120 кг |
| Виды твердого топлива | Дрова |
| Водяной контур | Да |
| Вторичный дожиг | Да |
| Гарантийный срок | 5 лет |
| Глубина | 850 мм |
| Наличие шибера | Нет |
| Подключение к дымоходу | Верхнее |
| Подъем стекла вверх | Нет |
| Производитель | Hoxter |
| Система очистки стекла | Да |
| Страна производитель | Чехия |
| Тип остекления | Прямое |
| Ширина | 662 мм |
| Высота | 1314 мм |
| Материал топки | Сталь |
| Мощность печи | 10,9-25,5 кВт |
Нет отзывов об этом товаре.


















