Каминная топка Экокамин ДЕЛЬТА 1000 B три стекла принтинг черный шамот
Каминная топка ДЕЛЬТА 1000 B три стекла принтинг производится из высококачественной котельной стали и покрыта термостойким лакокрасочным покрытием с антикоррозийными свойствами.
Топочная камера футерована современным материалом, литьевым шамотом черного цвета, и надежно защищает металлические детали корпуса топки от перегрева.
Жаропрочное стекло из Японии способно выдерживать температуру до 750 С. Стекло Панорамное с принтингом.
Система тепловой разводки имеет два встроенных патрубка диаметром 125 мм для подключения системы распределения теплого воздуха в смежные помещения и позволяет увеличить площадь обогреваемых помещений.
Система забора воздуха извне, имеет два встроенных патрубка диаметром 125 мм для подключения забора воздуха на горение из соседнего помещения, улицы, подвала, и повышает надежность работы топки.
Система очистки стекла эффективно очищает жаропрочное стекло и позволяет любоваться красотой огня.
Система вторичного дожига увеличивает КПД топки и позволяет экономить дрова.
С конца декабря 2023 года топки серии Вега, Дельта и камины Родос производятся без встроенных шиберных заслонок.
Ребра жесткости по всему корпусу топки и встроенные в дымосборник тепловые каналы позволяют снимать больше тепла и отдавать его в помещение путем конвекции. Высокий дымосборник и пламярассекатель не позволяют дымовым газам попадать в помещение при открывании дверцы.
Бесшумная и надежная тросовая система с противовесом и жаропрочными подшипниками, позволяет открывать дверцу топки вверх и производить закладку дров в топочную камеру.
Для оптимизации процессов горения все регулировки подачи воздуха на систему первичное горение, систему очистки стекла и встроенную шиберную заслонку производятся специальным ключом «ХОЛОДНАЯ РУКА».
Под чугунной колосниковой решеткой в днище топки, находится большой зольный ящик, который удобно вынимается.
Устойчивые, регулируемые по высоте ножки (100 мм), позволяют при монтаже установить топку по уровню.
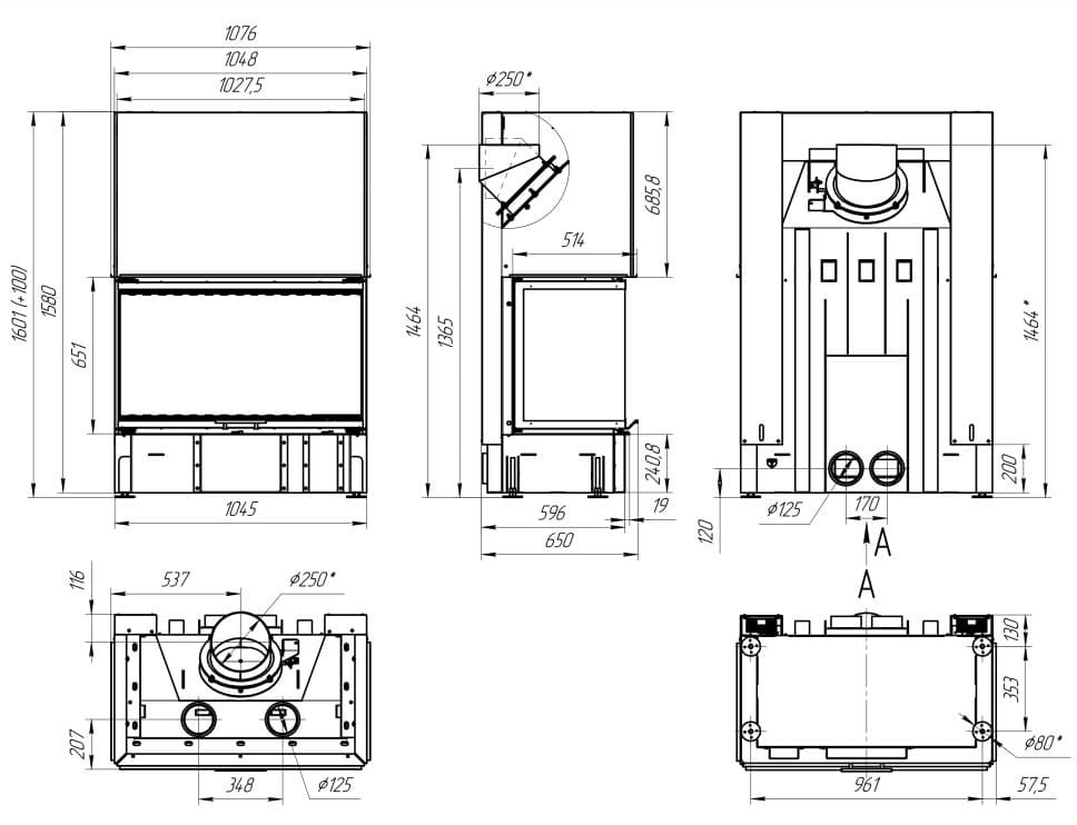
Размеры ДЕЛЬТА 1000 В три стекла принтинг Ш×В×Г: 1076×1601×650 мм.
Размеры топочной камеры Ш×Г: 860×375 мм.
Мощность: 18 кВт. Способна обогреть помещения площадью до 175 м2.
Чертеж каминной топки ДЕЛЬТА 1000 В три стекла принтинг:

Каминная топка ДЕЛЬТА 1000 B три стекла принтинг черный шамот прекрасно дополнит интерьер дома и подарит вам уют!
Видео Каминная топка ДЕЛЬТА 1000 B три стекла принтинг черный шамот
| Вес | 484 кг |
| Виды твердого топлива | дрова |
| Водяной контур | Нет |
| Вторичный дожиг | Постоянная подача воздуха |
| Гарантийный срок | 3 года |
| Глубина | 650 мм |
| Диаметр дымохода | 250 мм |
| Коэффициент полезного действия | 80 % |
| Мощность номинальная | 18 кВт |
| Подключение к дымоходу | Верхнее |
| Производитель | Экокамин |
| Система очистки стекла | регулируется заслонкой |
| Способ открытия дверцы топки | Вверх |
| Страна производитель | Россия |
| Форма стекла топки | Панорамное с принтингом |
| Ширина | 1076 мм |
| Высота | 1601 мм |
| Материал топки | Сталь |
| Длительное горение | до 6 часов |
| Способ горения: | колосниковый |
| Подача воздуха извне | 2 х 125 мм |






