20 332 BYN
Вы экономите: 6 098 BYN (-30%)
Телефон - 8 033 366-33-66
Производитель: Cheminees Philippe
Код товара: 9201
Cheminees Philippe 873-2V PR - модель угловой каминной топки из чугуна. Боковое стекло может быть как слева, так и справа.
Имеет функциональный и элегантный дизайн, который легко впишется в любой интерьер.
100% французское производство на литейном и производственном предприятии Cheminees Philippe.
Конструкция топки полностью чугунная с дверцей из керамического термостойкого стекла.
Каминная вставка с угловым стеклянным фасадом открывает широкий обзор пламени и позволяет бесконечно любоваться завораживающим видом на огонь. Благодаря системе "чистое стекло", сажа не оседает на стекло и смотровое окно остается чистым в течение всего топочного процесса. Несмотря на небольшие размеры, такая топка способна нагревать большие помещения и поддерживать комфортное тепло длительное время.
Cheminees Philippe 873-2V PR оснащена подъемным механизмом дверцы.
Поддерживается режим длительного горения.
Она эффективная и легкая в эксплуатации.
Номинальная мощность - 15.5 кВт.
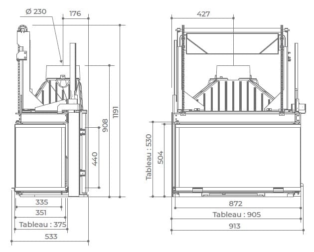
Каминная топка Cheminees Philippe 873-2V PR чертеж:

Видео Топка Cheminees Philippe 873-2V PR
| Глубина | 533 мм |
| Ширина | 913 мм |
| Высота | 1191 мм |
| Материал топки | чугун |
| Вторичный дожиг | да |
| КПД | 77,4 % |
| Номинальная мощность | 15,5 кВт |
| Стекло | угловое |
| Диаметр подключения дымохода | 230 мм |
| Вес товара | 249 кг |

































