17 436 BYN
Телефон - 8 029 699-40-40
Телефон - 8 033 366-33-66
Производитель: Cheminees Philippe
Код товара: 9199
Телефон - 8 033 366-33-66
Производитель: Cheminees Philippe
Код товара: 9199
Скидки постоянным клиентам!
Гарантия качества всех товаров магазина!
Бесплатная доставка товаров от 200 рублей!
Предлагаем комплексное решение по комплектации бань (дровяными и электрическими печами), загородных домов и квартир (дровяными, био, электрическими каминами)
Cheminees Philippe 777-2V PR - модель угловой каминной топки из чугуна. Имеет функциональный и элегантный дизайн, который легко впишется в любой интерьер.
Каминная вставка с угловым стеклянным фасадом открывает широкий обзор пламени и позволяет бесконечно любоваться завораживающим видом на огонь. Благодаря системе "чистое стекло", сажа не оседает на стекло и смотровое окно остается чистым в течение всего топочного процесса. Несмотря на небольшие размеры, такая топка способна нагревать большие помещения и поддерживать комфортное тепло длительное время.
Cheminees Philippe 777-2V PR оснащена подъемом дверцы вверх.
Поддерживается режим длительного горения.
Она эффективная и легкая в эксплуатации.
Номинальная мощность - 13 кВт.
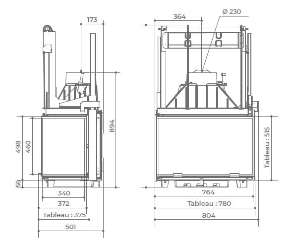
Каминная топка Cheminees Philippe 777-2V PR чертеж:

Видео Топка Cheminees Philippe 777-2V PR
| Глубина | 501 мм |
| Ширина | 804 мм |
| Высота | 1325 мм |
| Материал топки | чугун |
| Вторичный дожиг | да |
| КПД | 76,2 % |
| Номинальная мощность | 13 кВт |
| Стекло | угловое |
| Диаметр подключения дымохода | 230 мм |
| Вес товара | 207 кг |
Нет отзывов об этом товаре.
































