Каминная топка Austroflamm 89x49x45 S 2.0 Right - идеальный выбор для тех, кто стремится создать надежный и стильный камин или печь в своем доме. Сочетание высокого качества материалов, инновационного дизайна и функциональности делает эту топку популярным выбором среди ценителей комфорта и уюта.
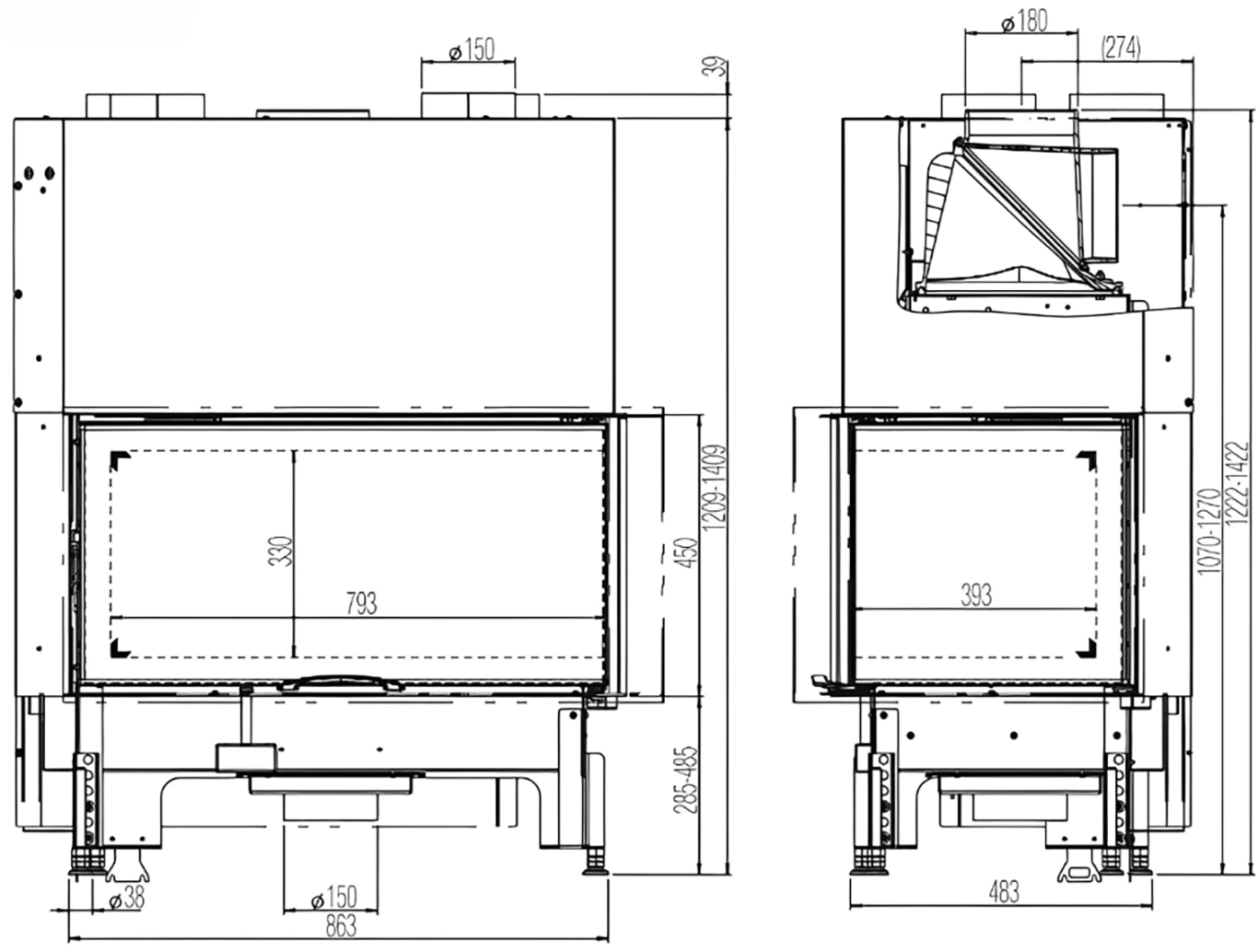
Каминная топка предлагает идеальные размеры для создания компактного, но эффективного отопительного устройства. Дверца, открывающаяся вверх с алюминиевой ручкой, и плоское стекло добавляют изысканности и легкости в обслуживании. Футеровка камеры сгорания из керамота обеспечивает долговечность и отличную теплоемкость. Топка идеально подходит для строительства камина или печи, а формат и конфигурация вставок позволяют легко интегрировать их в стандартные размеры кафельных облицовок без необходимости дополнительных подрезок. Система теплоаккумуляции в виде насадных колец ASM или дымовых каналов обеспечивает эффективное отопление, а возможность установки в закрытых теплоемких конструкциях типа "гипокауст" делает эту топку универсальным решением для различных интерьеров. Имеется также каминная топка Austroflamm 89x49x45 S 2.0 Left.
Не упустите возможность купить каминную топку Austroflamm 89x49x45 S 2.0 Right и создать уютное и теплое пространство в своем доме. Позвольте себе насладиться комфортом и стилем, выбрав лучшее для вашего дома.



Видео Каминная топка Austroflamm 89x49x45 S 2.0 Right
| Вес | 216 (кг) |
| Виды твердого топлива | Дрова |
| Водяной контур | Нет |
| Вторичный дожиг | Да |
| Гарантийный срок | 6 лет |
| Диаметр дымохода | 180 (мм) |
| Наличие шибера | Да |
| Номинальная мощность | 12 кВт |
| Подключение к дымоходу | Верхнее |
| Подъем стекла вверх | Да |
| Производитель | Austroflamm |
| Система очистки стекла | Да |
| Страна производитель | Австрия |
| Тип остекления | Угловое |
| Высота | 1209-1409 (мм) |
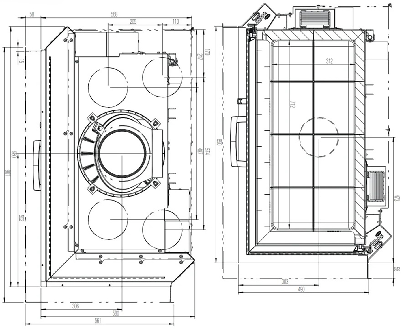
| Глубина (мм) | 568 (мм) |
| Ширина (мм) | 977 (мм) |
| Материал топки | Сталь |

































