Хотите создать уют и комфорт в своем доме? Тогда каминная топка Austroflamm 65x51 aquaHEAT - идеальное решение для вас! Эта модель пользуется огромной популярностью благодаря своим компактным размерам и высокой теплоотдаче и водяному контуру.
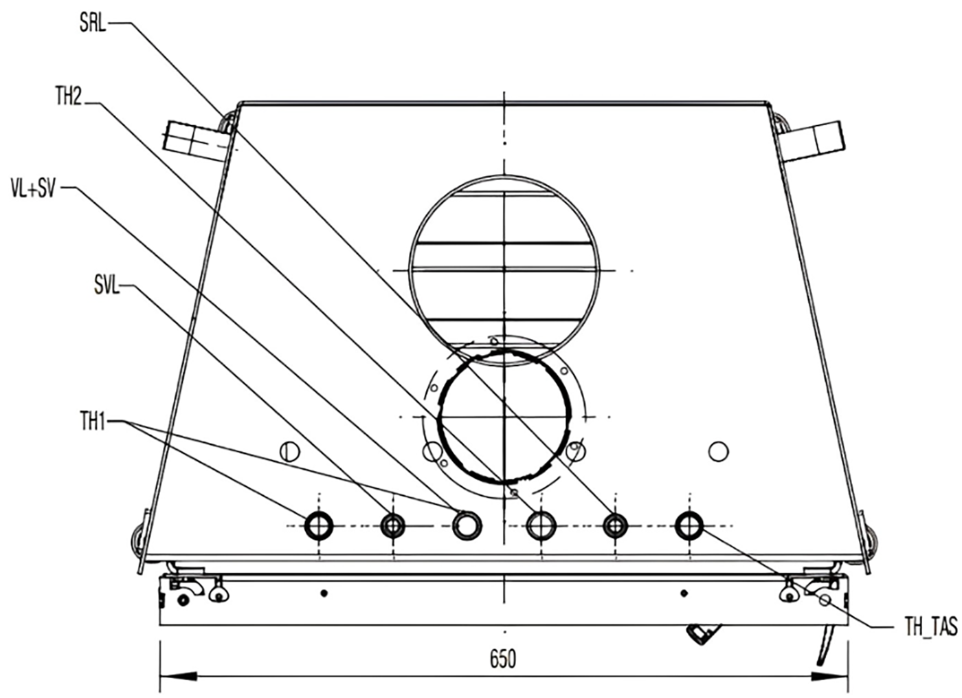
Каминная топка Austroflamm 65x51 aquaHEAT представляет собой идеальный выбор для тех, кто хочет создать небольшую теплоемкую печь или камин. Ее формат и конфигурация идеально подходят под стандартные размеры кафеля, что позволяет избежать нежелательных подрезок при облицовке. Одной из особенностей этой модели является встроенная система теплоаккумуляции в виде насадных колец ASM или системы дымовых каналов, обеспечивающая высокую отопительную эффективность. Данная модель обладает водяным контуром для подключения к автономно системе отопления. Допустимая длина каналов для каждой модели указана в инструкции, что обеспечивает безопасность и надежность использования. Кроме того, каминная топка Austroflamm 65x51 aquaHEAT имеет допуск для установки в закрытых теплоемких конструкциях типа «гипокауст», что делает ее универсальным решением для различных интерьеров. Также возможно подключение блока автоматического управления процессами горения, что обеспечивает удобство использования.
Создайте уют и тепло в своем доме с каминной топкой Austroflamm 65x51 aquaHEAT!




| Вес | 202 (кг) |
| Виды твердого топлива | Дрова |
| Водяной контур | да |
| Вторичный дожиг | Да |
| Гарантийный срок | 6 лет |
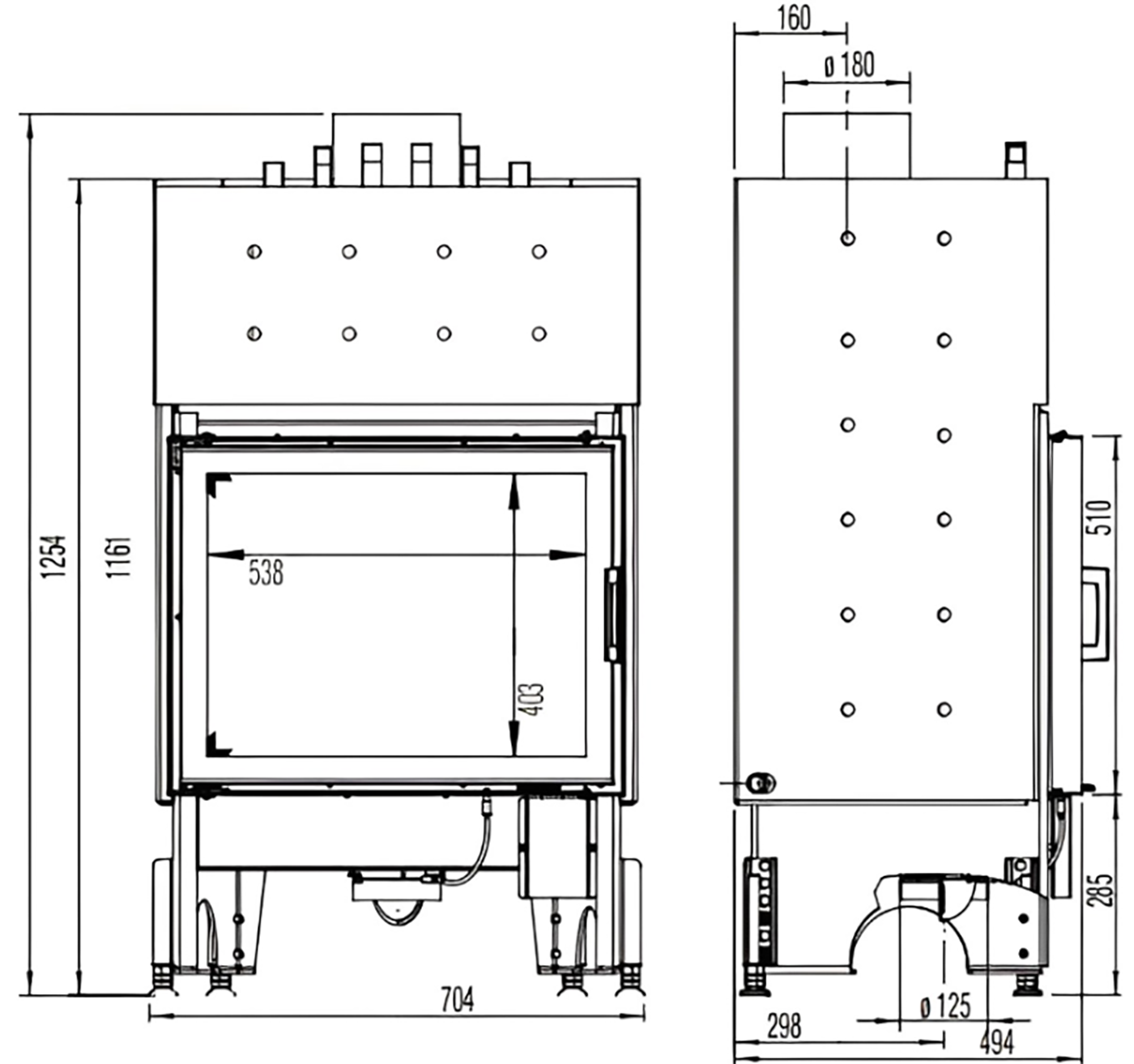
| Диаметр дымохода | 180 (мм) |
| Наличие шибера | Да |
| Номинальная мощность | 12,5 кВт (75% вода) |
| Подключение к дымоходу | Верхнее |
| Подъем стекла вверх | нет |
| Производитель | Austroflamm |
| Система очистки стекла | Да |
| Страна производитель | Австрия |
| Тип остекления | Прямое |
| Высота | 1254-1454 (мм) |
| Глубина (мм) | 494 (мм) |
| Ширина (мм) | 704 (мм) |
| Материал топки | Сталь |

































