Планы на уютные вечера у камина? Представляем вам каминную топку Austroflamm 55x55x57 K 3.0. Диаметр дымохода составляет 180 мм, что позволяет подключить его практически к дымоходу любого стандартного диаметра. Для ограничения интенсивного теплового излучения через стекло вставка оснащается двойным остеклением, а если облицовка темной комнаты соответствует требованиям дизайна, внутренняя часть вставки может быть изготовлена из керамики, содержащей черный пигмент, называемый углеродом. Эффект ожога сажи на черной отделке Keramott оставляет чистый смолисто-серый оттенок.
Вставки серии 55x55 пользуются заслуженной популярностью благодаря их компактным размерам и отличной отопительной эффективности. Система теплоаккумуляции ASM или дымовые каналы обеспечат равномерное и долговечное тепло в вашем доме. Двойные стекла и опция с черной керамической облицовкой Carbon добавят изысканности вашему интерьеру. Наслаждайтесь равномерным и долговечным теплом благодаря системе теплоаккумуляции ASM и дымовым каналам. Добавьте уют и комфорт в свой дом с каминной топкой Austroflamm 55x55x57 K 3.0!



| Вес | 109 (кг) |
| Виды твердого топлива | Дрова |
| Водяной контур | Нет |
| Гарантийный срок | 6 лет |
| Наличие шибера | Да |
| Номинальная мощность | 13 кВт |
| Подвод воздуха извне | есть |
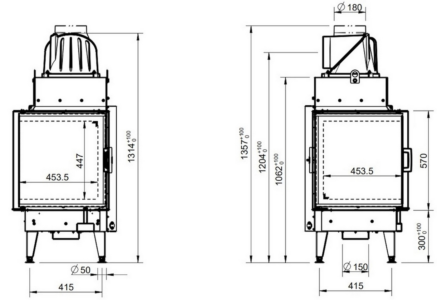
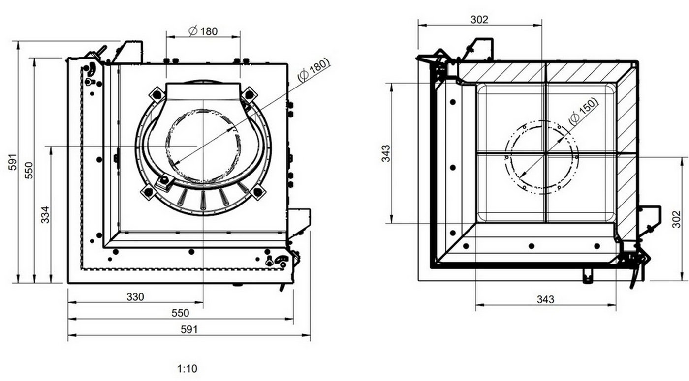
| Подключение к дымоходу | Верхнее |
| Подъем стекла вверх | нет |
| Производитель | Austroflamm |
| Система очистки стекла | Да |
| Страна производитель | Австрия |
| Тип остекления | Угловое |
| Высота | 1357-1457 (мм) |
| Глубина (мм) | 591 (мм) |
| Ширина (мм) | 591 (мм) |
| Материал топки | Сталь |
































