Добро пожаловать в мир уюта и тепла с каминной топкой Austroflamm 38x38x57 K 2.0! Компактная каминная топка вытянутой формы с номинальной мощностью 5 кВт идеально подойдет для небольших помещений, позволяя в полной мере насладиться пламенем.
Каминные топки Austroflamm серии K 2.0 - отличный выбор для создания камина в различных стилях с использованием современных технологий горения. Топки этой серии оснащены прямым стеклом, обеспечивающим панорамный вид на красивое сгорание благодаря технологии Keramott. Материал Keramott обладает высокой теплоизоляцией и теплопроводностью, что позволяет быстро достигать высоких температур и поддерживать оптимальное сгорание.
Откройте для себя красоту и функциональность каминной топки 38x38x57 K 2.0. Уют и тепло вашего дома будут в надежных руках с каминной топкой Austroflamm.

Прочитайте: Инструкция по установке и эксплуатации
| Вес | 72 (кг) |
| Виды твердого топлива | Дрова |
| Водяной контур | Нет |
| Вторичный дожиг | Да |
| Гарантийный срок | 6 лет |
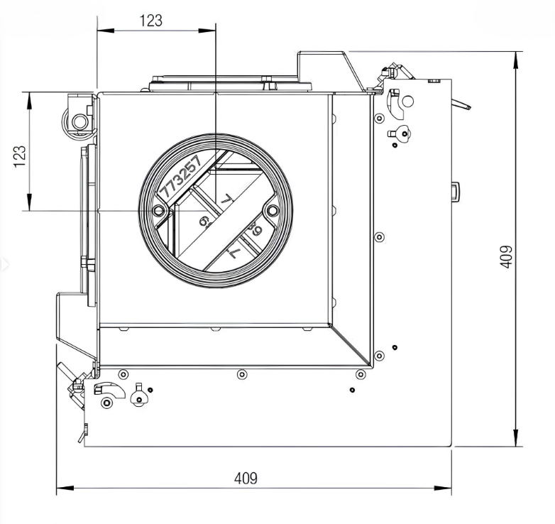
| Диаметр дымохода | 150 (мм) |
| Наличие шибера | Да |
| Подключение к дымоходу | Верхнее |
| Подъем стекла вверх | нет |
| Производитель | Austroflamm |
| Система очистки стекла | Да |
| Страна производитель | Австрия |
| Тип остекления | угловое |
| Высота | 1093-1293 (мм) |
| Глубина (мм) | 409 (мм) |
| Ширина (мм) | 409 (мм) |
| Материал топки | Сталь |




































