Каминная топка Heatro 81 - панорамная каминная топка из стали с накопительной керамикой и дверцей с современным остеклением "Full Glass". Дверца открывается в сторону.
Широкие двери зрительно увеличат интерьер гостиной, а вид на огонь станет еще красивее.
Эргономичная и вентилируемая ручка открывания двери из нержавеющей стали подчеркивает ее уникальность и добавляет элегантности.
Технические характеристики:
Класс энергоэффективности: А
Номинальная мощность: 12 кВт
Диапазон мощностей: 6-16 кВт
КПД: 80%
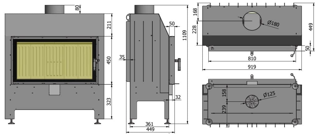
Диаметр воздухозаборника: 125 мм
Диаметр выхода дымовых газов: 180 мм
Максимальная длина поленьев: 70 см
Вес: 161 кг
Гарантия: 5 лет
Описание:
выход дымохода D-180 мм - совместим с большинством дымоходов
качественный стальной корпус - высокая термостойкость
радиаторы вокруг корпуса - большая поверхность нагрева
система «двойной дефлектор» - высокая эффективность и низкий уровень выбросов выхлопных газов
система "clear optimum" - эффективная очистка стекла
трехслойное проветривание очага - экологическое горение дровами
термостойкая керамика - лучшее горение и накопление тепла
сплошная дверь с термостойким стеклом - безопасность использования
вентилируемая рукоятка - эргономика и безопасность
бесступенчатый регулятор - плавная регулировка динамики сгорания
регулируемые ножки - легкая сборка и выравнивание топки
коннектор центрального кондиционера D-125 мм - легкий доступ для подключения
герметичная камера сгорания - можно использовать в домах с принудительной вентиляцией (рекуперация)

Дверца выполнена в современном стиле «Full Glass» (Полное остекление), в котором видимость стальных элементов сведена к минимуму. Из-за такой формы очаг визуально кажется больше, чем он есть на самом деле. Дверца имеет эргономичную вентилируемую ручку из нержавеющей стали для открывания в сторону.

Вставки Heatro имеют регулятор, который легко и точно управляет процессом горения, и для его работы не нужны никакие дополнительные инструменты. Плотная подача воздуха в топку обеспечивает быструю реакцию на регулировку воздуха.

Современная керамическая облицовка, используемая внутри очага, прекрасно аккумулирует тепло, а это значит, что после того, как огонь погаснет, камин сохраняет тепло в течение многих часов. Благодаря правильно подобранной рецептуре наша керамика приятна глазу теплым цветом, и в то же время отличается высокой устойчивостью к температурным и механическим факторам.

Дверцы каминных топок Heatro отличаются долговечностью благодаря использованию специально сконструированного стального профиля толщиной 3 мм. Специальная втулка обеспечивает простую и надежную установку уплотнителя в дверь.
Давление двери на уплотнение можно легко отрегулировать с помощью регулируемого болта. Благодаря этому решению можно поддерживать герметичность печи при естественном износе прокладки в процессе эксплуатации.




Видео Каминная топка Heatro 81
| Размер дров | 70 см |
| Открывание двери | в сторону |
| Внешний размер | 1109x919x449 мм |
| КПД | 80 % |
| Номинальная мощность | 12 кВт |
| Стекло | прямое |
| Диаметр подключения дымохода | 180 мм |
| Вес товара | 161 кг |
| Топливо | дрова |










