Brunner BKH Panorama 45-45-45-45 серии green - это трёхсторонняя топка с боковыми стёклами.
Компактные размеры топки делают её удобной для установки в помещениях малой площади. Дверца топки с подъёмным механизмом. Топка оснащена монтажной рамкой, которая упрощает отделку каминного короба. Топочная камера футеруется шамотом или чугунными пластинами. Система подового горения с направленной подачей воздуха в центр топочной камеры обеспечивает высокую эффективность и полное сгорание топлива. Топка оснащена патрубком диаметром 150 мм для подключения приточного воздуха, что позволяет создавать комфортный микроклимат в помещении.
В качестве опции топка может быть оснащена каталитическим фильтром, который устанавливается в дымосборнике. Этот фильтр эффективно снижает выбросы несгоревших частиц в дымоход, что значительно улучшает экологичность топки.
Стекло в двери может быть с покрытием, которое блокирует инфракрасное излучение. Это покрытие отражает до 20% лучистого тепла обратно в топочную камеру, что способствует поддержанию высокой температуры горения в топке.
Кроме того, на топку можно установить систему автоматического контроля горения EAS, которая способствует более эффективному сжиганию дров. Она автоматически регулирует подачу воздуха в топку, что позволяет контролировать процесс горения и поддерживать его на оптимальном уровне.

Преимущества топки:
- Надежная конструкция корпуса из высококачественной стали;
- Декоративная рамка для удобного монтажа в облицовке;
- Превосходная герметичность топочной камеры;
- Высокая эффективность и экологичность.

Видео Газовый камин Panorama BKH 45-45-45-45
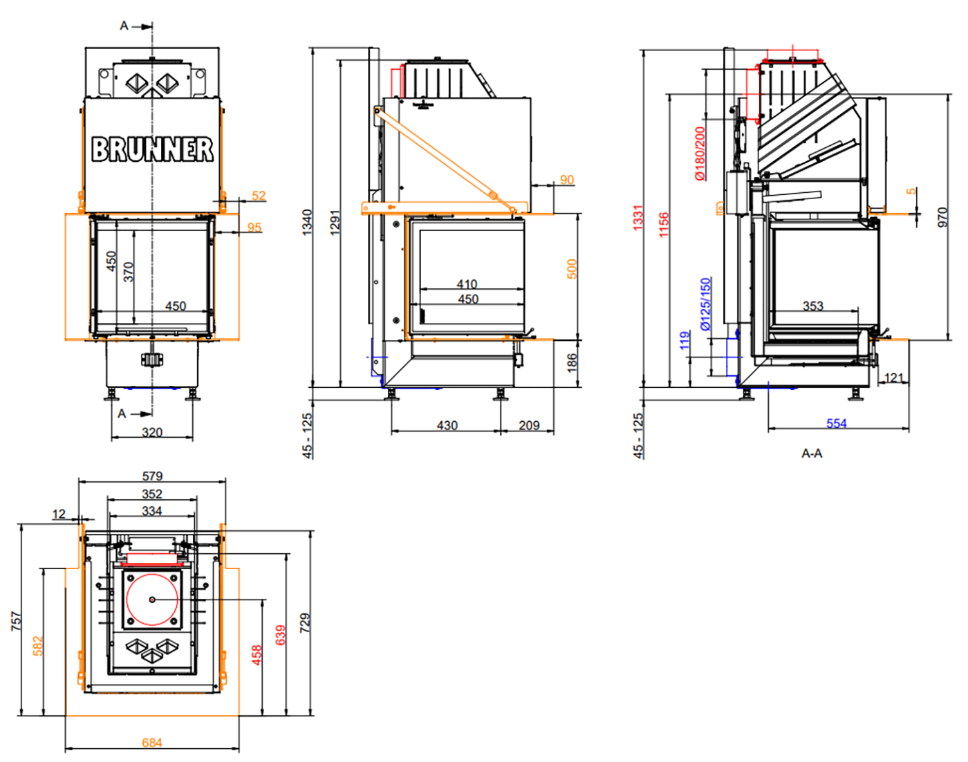
| Гарантийный срок | 5 лет |
| Высота | 1390 мм |
| Глубина | 757 мм |
| Ширина | 684 мм |
| Варочная поверхность | нет |
| Вес | 239 - 242 кг |
| Вид топлива | газ |
| Водяной контур | нет |
| Диаметр дымового патрубка | 180-200 мм |
| Длительное горение | да |
| Материалы корпуса | сталь |
| Мощность печи | 7 кВт |
| Расположение печи-камина | Отдельно стоящее |
| Производитель | Brunner (Германия) |









